CAD DRAFTING SERVICES
Advenser is a distinguished and leading CAD drafting service provider catering to the AEC industry since 2007. Having over a decade of experience in CAD, we have successfully delivered multiple projects to our clients worldwide. We own the expertise to assist various stakeholders such as Architects, owners, Structural Consultants, MEP Consultants, Mechanical Designers, Landscapers, Interior Designers, Facility management firms, Real Estate developers, and Fabricators. Our proficient CAD Draftsmen are all equipped to create accurate and precise CAD drawings compatible with software like AutoCAD and similar. As per the personalized client’s requirements and specifications, the CAD Drafting output can be delivered in any of the subsequent CAD formats- .dwg file, .dws, .dwt, .dxf.
Our global exposure helps us to keep abreast of industry trends and international design and drafting standards, helping our team to deliver qualitative AutoCAD drafting services adhering to the identical. AutoCAD drafting being the most commonly used and preferred technique in the AEC industry, our extensive offerings of CAD drafting services help you with better insights, easy collaboration, project budgeting, predicting the expected time for project completion, and also, can be easily stored in an electronic format for future use. We ensure that our clients get high-end reliable output/deliverables hassle-free and cost-effectively.
CAD Conversion Services
As a CAD digitalization & conversion provider, we offer client-oriented CAD conversion services that include:
Image to AutoCAD conversion
Raster to Vector AutoCAD Conversion
CAD Migrating Services
Hand drawings / sketches / PDF to CAD conversions
3D to 2D AutoCAD Conversion
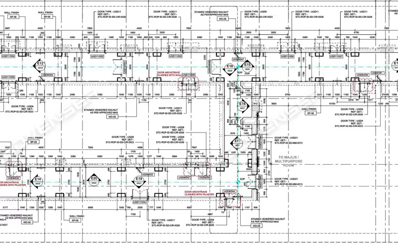
Our Architectural CAD services include customer-centric drafting and detailing for a single villa to large residential and commercial buildings, tenant improvement, institutional buildings, and construction projects including general layout, furniture layout, plan, elevation, sections, site plan, etc. abiding by the International design standards.
Our Architectural CAD Drafting Services include:
We help you to expedite the pace of your construction, manufacturing, and fabrication with accurate, timely, competitive, and flawless Structural CAD Drafting Services including Civil Structural Drafting and Steel Drafting ranging from single-family to large residential and commercial buildings.
Our Structural CAD Drafting Services include:
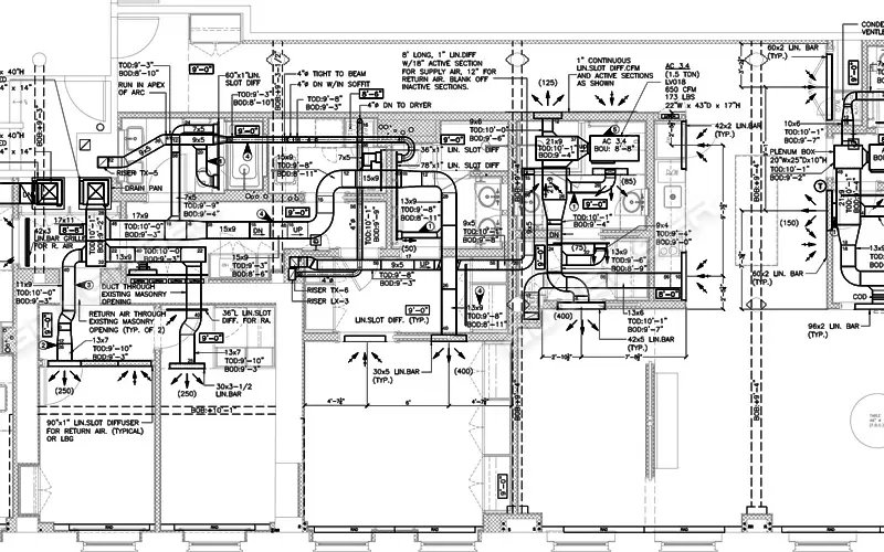
Our MEP CAD drafting services assures our clients to acquire a wide range of accurate drawings to be used for design development, on-site installation, and maintenance, and record-keeping.
Our highly precise technical MEP CAD drawings for your MEP projects can be reliably used for references by mechanical engineers, electrical engineers, HVAC engineers, plumbing engineers, contractors, and consultants.
Our MEP CAD Drafting Services include:
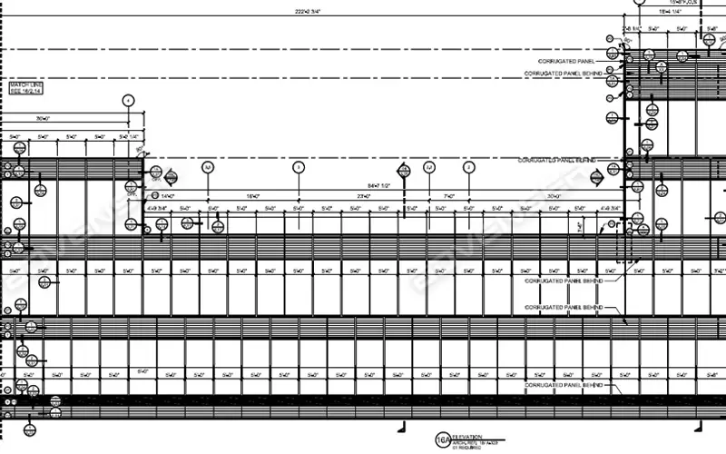
Advenser’s Façade CAD Drafting Services helps our clients to avail an aesthetically pleasing, energy-saving, impeccable, cost-effective and functional façade.
Our top-level CAD drafting services with specialties in SCHUCO, KAWNEER, GUTMANN, GULF EXTRUSION, JANSEN ECONOMY, JANISOL, VISS, ALCOA, PRESTO profile systems empower us to deliver you the most contemporary and essential Façade CAD Drawings.
Our Facade CAD Drafting Services include:
Cladding detailing
Industrial CAD Drafting Services:
Our Industrial CAD Drafting Services cater to various sectors like manufacturing, process plants, power generation, oil & gas, and heavy engineering. We ensure precise, reliable, and standards-compliant drafting for various projects, meeting the needs of plant owners, consultants, equipment suppliers, maintenance and EPC contractors.
Our team of skilled drafters delivers detailed documentation, facilitating equipment layout planning, retrofitting, space analysis, piping schematics, and plant modifications with seamless coordination between engineering and fabrication teams.
BIM Services
Architectural
Structural
MEP
Facade
Industrial


