REBAR DETAILING SERVICES
What We Do – As a Rebar Detailer
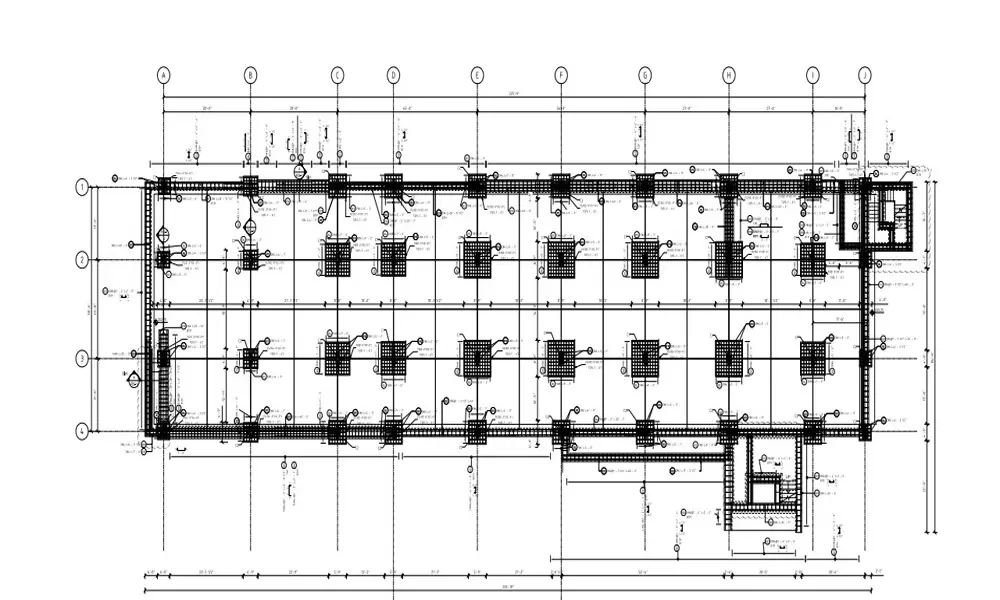
Here at Advenser, our team of skilled rebar detailers prepares shop drawings for the placement of the reinforcing steel. They provide the precise details on bends, shapes and lap splices to meet the requirement of your specific project. Any issues regarding project constructability are tackled instantly before the first piece of rebar is bent or sheered. The detailed drawings provided by our rebar detailers often help our contractors to visualize the structures. In fact, with these detailed drawings, the task of ironworkers are highly simplified, as they know where to place and thus reduces the cost of installation.
Specialization in Rebar Detailing Includes
Foundation details
Rebar shop drawings
Rebar 2D & 3D modeling
Bar listing in ASA format
Total rebar estimation
Bar bending schedules
Footing detailing
Grade beam detailing
Constructability Reviews
Concrete joint and slab details
As-built drawings
Roof truss and joint details
Quantity take-offs
Retaining walls detailing
Concrete masonry detailing
Our Estimates Aid your Goal and Budget with your Project!
Rebar Estimating Service
Experience is the key skill for rebar estimation process. Our team of rebar estimators has 20+ years of combined experience. We estimate your complete services and materials that are required for the project. The estimation service ensures that the project runs on the minimum costs, reduced storage space at site location, and stay with your time schedule. We calculate and offer accurate quotes to our clients which include materials, accessories and erection costs.
International Standards we follow
- AASHTO – American Association of State Highway and Transportation Officials
- ACI – American Concrete Institute
- ASTM – American Society for Testing and Materials
- BS – British Standard,
- CRSI – Concrete Reinforcing Steel Institute,
- RSIO – Reinforcing Steel Institute of Ontario
-
- hardcover
- hardcover
- spine
- spine
Software We Use for Rebar Detailing
RebarCAD
AutoCAD
Revit
RGS Rebar
Tekla Structures
MultiSUITE
Accurate and On-Time Delivery
Investing extra time and effort on rebar drawings definitely saves you a ton of time and money at your shop as well as a job site. These accurate rebar drawings simplify the task of the workers at the site. Workers know where to place and thus reduces the installation cost. As prominent rebar detailing company, Advenser truly understands your tight schedules and commitments and thus provide you timely delivery of service.
BIM Services
Architectural
Structural
MEP
Facade
Industrial





