ASSEMBLY DRAWING SERVICES
Assembly drawing is a presentation of a structure or product with its components connected together,in their relative working positions while in use. These components are fabricated separately, and are assembled or installed together at their utility sites such that each part fits and matches with the others. Advenser has a unique track record of a decade, delivering assembly drawings for architectural, structural, mechanical and plumbing systems to the AEC and manufacturing industries.
Our experienced engineering detailing team ensures that, the assembly drawings we produce depict precise information for the site workers to assemble the components seamlessly. Our 3D modeling services for an assembled structure or product convey its final shape. We also provide a Bill Of Materials list, which is a list of component parts that communicate dimensions, shapes and labeling of individual components.
Our Assembly Drawing Services:
Architectural general layouts or assembly drawings detail how the different prefabricated components connect with each other, and with the structural elements. Advenser has rich and versatile experience record working in general layout arrangements for individual architectural elements such as doors or windows, as well as architectural sub-assemblies such as roof trusses or millwork for residential, commercial and institutional projects. 3 Dimensional views are also provided by us to illustrate the correlation between individual elements and trades involved. We warrant that our assembly drawings contain an optimum and comprehensive measure of details necessary for laymen to install the architectural system in the built environment, at the same time avoiding unnecessary and irrelevant details.
Our Architectural Assembly Drawing Services:
Doors & Windows
Joinery
Roof trusses
Millwork
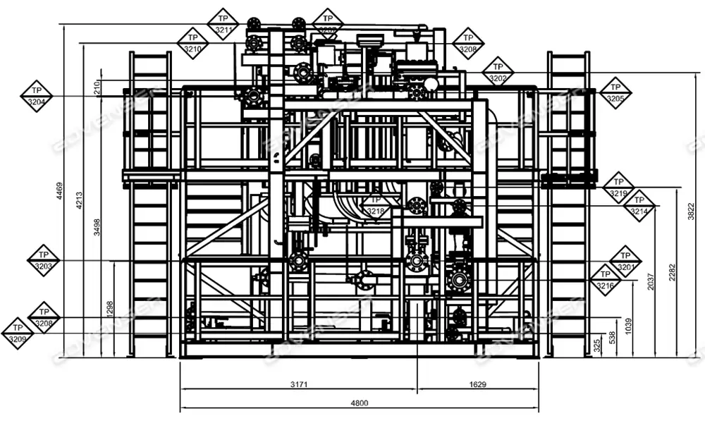
Mechanical Assembly Drawings Offered:
Design Assembly Drawing
Sub-Assembly Drawing
Assembly Drawings for Catalogues & User Manuals
Detailed Assembly Drawing
Installation Assembly Drawing
Schematic Assembly Drawing
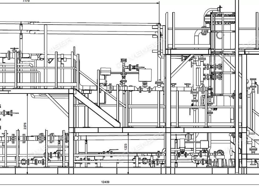
Our Spool Drawing Services:
HVAC Pipe
Duct
Plumbing
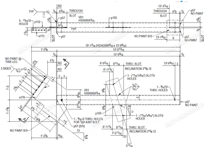
Steel Assembly drawings are part of fabrication drawings and show how the individual steel members such beams, columns or plates are welded to each other. Our Steel Assembly drawings accurately detail the sizes, relative positions, hole position, finish details and part numbers of each steel members in the assembly. We adhere to strict quality measures in the production steel fabrication shop drawings, assembly drawings and erection drawings. Our Steel detailers utilize leading software tools that provide 3D modeling capabilities such as Trimble Tekla and Advance CAD for generating integrated clash free structural models. Assembly drawings and shop drawings are extracted along with Structural & Miscellaneous steel Take off lists (Bill of materials).
Our Steel Fabrication Drawing Services:
Assembly drawings
Steel Take off
Parts Shop drawings
We provide GA Drawings and Marking Plans for:
Precast Beams
Wall Panels
Double Tee Slabs
Architectural Precast
Utility Precast
Precast Columns
Solid Precast Slabs
Hollow Core Slabs
Precast Double wall panels
Check our samples.
Contact us Now.
BIM Services
Architectural
Structural
MEP
Facade
Industrial








