BIM FOR DESIGN DEVELOPMENT
Design Development Services is genuinely the forte of our team of 200 engineers!
The dedicated team of engineers working Advenser, in the Architectural, Structural, Steel, MEP & Façade domains are capable of providing builders, designers and design consultants with expert assistance during the entire Design Development phase of their construction project. Our design development services include,
- Architectural Design Development
- Structural Design Development
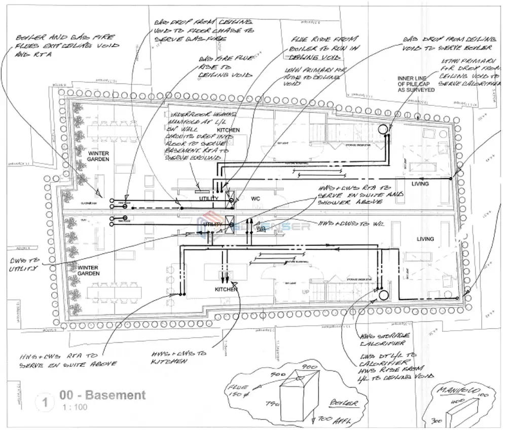
- MEP Design Development
- Façade Design Development
- Rebar/Precast Design development
What do we do?
Our team of architects will work on the Rough Hand Sketches / Schematic Drawings of the building design we receive as input files. These drawings will be revised with more specificity and detail, along with developing a 3D BIM model.
These models and drawings are developed with a focus on helping our clients in analyzing the different parts of the structure, to select materials including interior finishes and products such as windows, doors, fixtures, etc. Parallel to the architectural design development phase, our team of structural & MEP engineers will work on the structure, plumbing, electrical, heating/ventilation systems.
We work as an extension of your team of designers to help them in product selection and also to facilitate the smooth progress of the system designs. We will relentlessly work on a project until the interior & exterior design of a building and its systems are finalized.
The accurate & coordinated drawings of the architectural, structural, MEP, fire protection, HVAC systems is then used to prepare the construction documents.
What Do We Deliver?
3D Design development models
Typical construction details
Plans, sections and elevations with full dimensions
Final materials specifications
How do we work?
We work as an extension of our clients’ team of engineers/designers to act as a bridge between the schematic/rough design sketches and detailed construction documents. The team ensures that the drawings and the 3D BIM models we deliver help our client have a firsthand look at what the project will look like when completed.
When you bring Advenser into your project loop, you experience the benefits of having a scalable team of engineers working on your project as an extension of you in house team.
Know Our Team
We have an in-house team of 200 engineers working in the Architectural, Structural, Steel, Precast, Façade, Rebar & the MEP domains. The team works in shifts round the clock to ensure that we are available 24*6 to our clients who are spread across different time zones. The team of engineers at Advenser has extensive experience in handling projects of various complexity ranging from Residential, commercial & Hospital to industrial buildings. Over the last decade, we have completed projects in the USA, UK, Australia, New Zealand, Europe, and the Middle East. Our experience in working on projects that are spread across the globe enables us to adhere to the industrial standards and building codes of the project location.
Software Expertize

Autodesk Revit suite

AutoCAD

Navisworks

AutoCAD Architecture
Check our samples.
Contact us Now.
BIM Services
Architectural
Structural
MEP
Facade
Industrial











